アトラス麻布台1001号室

東京タワー×麻布台ヒルズ×六本木ヒルズ VIEW

2025年新築のハイグレード仕様

南西角住戸

価格:41,999万円(税込)

所在地:東京都港区麻布台3-3-9

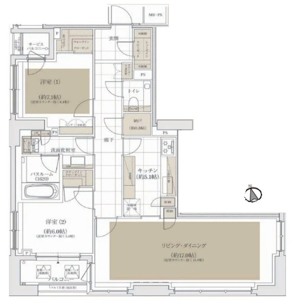
間取り:2LDK+N+WIC+STC+SIC

専有面積:88.67㎡

アクセス

・東京メトロ南北線・都営大江戸線「麻布十番」駅徒歩6分

・東京メトロ日比谷線・都営大江戸線「六本木」駅徒歩11分

取引態様:仲介

本物件は、仲介手数料最大無料でご対応いたします。

  「物件概要」

所在地:東京都港区麻布台3-3-9

権利:所有権

構造:鉄筋コンクリート造17階建10階部分

完成:2025年9月

修繕積立金:11,970円 / 月

管理費等:50,370円 / 月

ペット:可(規約あり)

管理:日勤

総戸数:34戸

専有面積:88.67㎡

バルコニー面積:5.05 m²

サービスバルコニー面積:2.00㎡

施行:飛鳥建設

管理会社:旭化成不動産コミュニティ

駐車場:41,000~44,000円/月

自転車:200~400円/月

「お問い合わせ」

物件に関するご相談・内見予約はお気軽にお問い合わせください。

購入の流れについても丁寧にご案内いたします。

本物件は仲介手数料最大無料でご対応いたします。
購入時のコストを抑えたい方は、お気軽にご相談ください。

「注意事項」

※掲載内容と現況が異なる場合は現況を優先します。
※駐車場・駐輪場の空き状況は都度ご確認ください。
※物件情報は随時更新しております。

高層の都市型のビルが青空の下にそびえている
東京タワーと高層ビルが見える都市のスカイライン.
日本語の間取り図で、リビングダイニング、キッチン、洋室、トイレ、浴室、洗面化粧室、収納スペースが示されています。